本文へスキップ

市川・浦安の不動産情報 住宅・マンション・土地のご相談は有限会社わかば土地へ

電話でのお問い合わせは047-324-6032

〒272-0826 千葉県市川市真間1-15-12

物件詳細 一戸建detail

市川市国分1丁目(新築住宅)

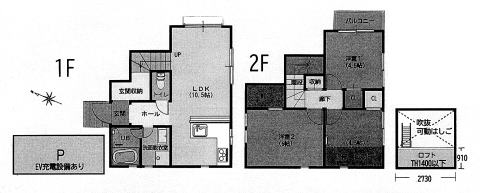
**【新築】菅野エリア徒歩圏×川沿いの開放感。陽当たり抜群の三角地に建つ、個性的な2SLDK+ロフト**市川市国分1丁目、国分川沿いの開放的なロケーション。南側が大きく抜けており、一年を通して明るい陽射しが差し込む住まいです。敷地は69.25u。三角形の個性的な形状を活かし、**ロフト付き2SLDK+車庫(小型車)**のコンパクトで効率的なプランを実現。S部分は収納・ワークスペースとして使いやすく、在宅ワークや趣味の空間としても最適です。北側5.2m公道に面し、車の出入りもスムーズ。西側は開けた空地、南側は隣地通路で、周囲に圧迫感がなく、想像以上に開放的な住環境が広がります。2026年1月築の新築。地盤改良+べた基礎で安心の構造。菅野駅まで徒歩18分、“菅野アドレスで新築を4,000万円台で”という方に最適な一邸です。

物件写真

外観 内装1 外観 内装1 外観 内装1

物件概要

価格 価格 44,900,000円 種別 新築住宅
所在地 市川市国分1丁目
最寄駅 京成本線菅野駅徒歩18分 総武線市川駅バス6分「須和田」停徒歩7分
敷地面積 69.25u その他私道面積 なし
都市計画 市街化区域  用途地域  1種低層住居専用地域 
その他法令上の制限 法22条区域内 宅地造成等規制区域(市内全域)景観法 
道路 北約5.2m公道 地目 宅地 
土地権利 所有権 地勢 平坦地
建物構造・規模 木造2階建  築年月  2026年1月 
延床面積 64.38u  間取り 2SLDK 
設備 公営水道・東電・LPガス・個別浄化 建物種類 居宅
現況 引渡し 相談
駐車場  あり(EV充電設備・車種制限あり)  取引態様 媒介 
備考 
  • 全室防カビ・抗菌・抗ウイルス壁紙使用、宅配ボックス・ウォッシュレット・TVモニター付きインターフォン・浴室暖房乾燥機・追炊き機能・リビングにエアコン・全室照明器具付き etc。