本文へスキップ

市川・浦安の不動産情報 住宅・マンション・土地のご相談は有限会社わかば土地へ

電話でのお問い合わせは047-324-6032

〒272-0826 千葉県市川市真間1-15-12

物件詳細 一戸建detail

市川市宮久保1丁目(中古住宅)

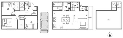
「陽当り良好・閑静な住宅街」10帖の大型ロフト。趣味のお部屋・書斎・収納・お子様の秘密基地。床暖房・食洗機・タッチレス水栓・自動湯張り機能付きUB設備充実。LDK16帖のゆとりあるプラン。各居室二面採光で開放感あり。小学校まで5分 スーパー・ドラッグストアも徒歩圏。

物件写真

外観 外観 内装1 内装1 外観 内装1

物件概要

価格 価格 35,800,000円 種別 居宅
所在地 市川市宮久保1丁目
最寄駅 京成本線菅野駅徒歩23分 
敷地面積 75.04u その他私道面積 なし
都市計画 市街化区域  用途地域  地域 
その他法令上の制限 法22条区域内 宅地造成等規制区域(市内全域)景観法
土地権利 所有権 地勢 平坦地
建物構造・規模 木造2階建  築年月  2021年12月 
延床面積 74.52u  間取り 3LDK+ロフト
現況 居住中 引渡し 相談
駐車場  あり 取引態様 媒介 
備考 
  • 百合台小340m 三中840m 菅野保育園840m 百合台幼稚園635m 
  • AC4基 照明器具 床暖房 食洗器 システムキッチン タッチレス水栓 自動湯張り機能付きUB タンクレストイレ etc。