本文へスキップ

市川・浦安の不動産情報 住宅・マンション・土地のご相談は有限会社わかば土地へ

電話でのお問い合わせは047-324-6032

〒272-0826 千葉県市川市真間1-15-12

物件詳細 一戸建detail

市川市須和田2丁目(中古住宅)

【車庫付き・風致地区】昭和レトロの隠れ家、1,500万円。市川市須和田2丁目、静かな住宅街の一角。昭和60年築の木造2階建・3K。車庫付き。北側4m道路に面し、周辺の“グネグネ道”とは一線を画すスッキリ感。東側隣地通路で、狭さを感じさせない開放感。都市計画道路予定あり—将来の変化も視野に。市川真間駅徒歩22分。風致地区の静けさと昭和の温もりを感じる一軒です。DIY/再生志向の方への「ベース」となる物件。

物件写真

外観 内装1 外観

物件概要

価格 価格 15,000,000円 種別 中古住宅
所在地 市川市須和田2丁目
最寄駅 京成本線市川真間駅徒歩22分 
敷地面積 65.22㎡ その他私道面積 なし
都市計画 市街化区域  用途地域  1種低層住居専用地域 
その他法令上の制限 風致地区 法22条区域内 宅地造成等規制区域(市内全域)景観法
道路 北約4m公道 地目 宅地 
土地権利 所有権 地勢 平坦地
建物構造・規模 木造2階建  築年月  S60年3月 
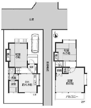
延床面積 49.2㎡  間取り 3K
設備 公営水道・東電・都市ガス・個別浄化 建物種類 居宅
現況 居住中 引渡し 相談
駐車場  あり(車種制限あり) 取引態様 媒介 
備考 
  • 都市計画道路は事業計画はなくて、都市計画段階でストップ状態。
  • 現況有姿売買 契約不適合責任免責。