本文へスキップ

市川・浦安の不動産情報 住宅・マンション・土地のご相談は有限会社わかば土地へ

電話でのお問い合わせは047-324-6032

〒272-0826 千葉県市川市真間1-15-12

物件詳細 一戸建detail

鎌ヶ谷市東中沢2丁目(中古住宅)

「見栄より、実利。鎌ヶ谷で叶える“ちょうどいい暮らし”。」駅近・角地・内外装リフォーム済み。高台の平坦地・角地・閑静な住宅街。鎌ヶ谷駅・新鎌ヶ谷駅も徒歩圏。1,480万円の逆転劇。2階にもキッチンがあるので2世帯住宅としても利用可能。市川・船橋で背伸びをするより、鎌ヶ谷で地に足つけて暮らそう。

物件写真

外観 内装1

物件概要

価格 価格 14,800,000円 種別 中古住宅
所在地 鎌ヶ谷市東中沢2丁目
最寄駅 京成松戸線北初富駅徒歩10分 東武野田線鎌ヶ谷駅徒歩14分 
京成松戸線・東武野田線・北総線・成田スカイアクセス線新鎌ヶ谷駅徒歩18分 
敷地面積 80.05u その他私道面積 なし
都市計画 市街化区域  用途地域  1種低層住居専用地域 
その他法令上の制限 法22条区域内 
道路 北約5.5m公道×西4m私道 地目 宅地 
土地権利 所有権 地勢 平坦地
建物構造・規模 木造2階建  築年月  1988年3月 
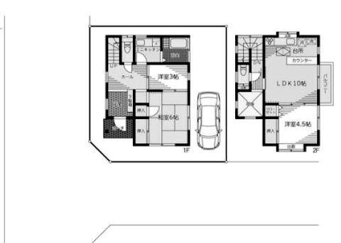
延床面積 72.70u  間取り 3LDK
設備 公営水道・東電・都市ガス・本下水 建物種類 居宅
現況 引渡し 相談
駐車場  あり(車種制限あり、庭潰せば2台入ると思う 要現地で確認)。 取引態様 媒介 
備考 
  • 2025年8月内外装リフォーム 建物仕様:バス1坪以上 追炊き機能 トイレ2箇所 温水洗浄便座 3口コンロ システムキッチン 床下収納 照明器具 省エネ給湯器 CATV インターネット対応 モニター付きインターフォン 火災報知器 
  • 2年間の瑕疵保証付き(売主負担)。