本文へスキップ

市川・浦安の不動産情報 住宅・マンション・土地のご相談は有限会社わかば土地へ

電話でのお問い合わせは047-324-6032

〒272-0826 千葉県市川市真間1-15-12

物件詳細 一戸建detail

船橋市藤原2丁目(中古住宅)

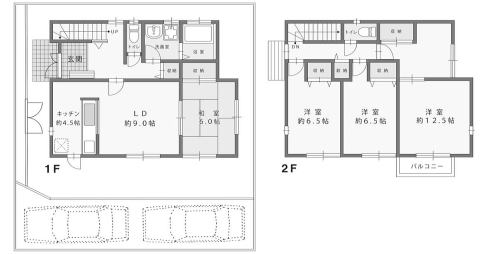
まるで“島”のようにぽつんと佇む高台の区画整理地内。通り抜けできない静かな住宅地は、車の往来も少なく、子育てにも安心の環境です。駅徒歩5分とは思えない、静けさと開放感。西側6m公道に面し、間口11.8mのゆとりある敷地。1997年築・大成建設ハウジング施工の堅牢な木造2階建。4LDK・延床110u超で、家族の暮らしにちょうどいいサイズ感。カースペース2台分。駐車もスムーズ。現在は浄化槽ですが、近日中に本下水管が敷設予定。

物件写真

外観 内装1 外観

物件概要

価格 価格 36,800,000円 種別 中古住宅
所在地 船橋市藤原2丁目
最寄駅 武蔵野線船橋法典駅徒歩5分 
敷地面積 140.02u その他私道面積 なし
都市計画 市街化区域  用途地域  1種低層住居専用地域 
その他法令上の制限 法22条区域内 風致地区 宅地造成等規制区域(市内全域)景観法
道路 西約6m公道 地目 宅地 
土地権利 所有権 地勢 平坦地
建物構造・規模 木造2階建  築年月  1997年4月 
延床面積 110.13u  間取り 4LDK 
設備 公営水道・東電・都市ガス・個別浄化 建物種類 居宅
現況 居住中 引渡し 相談
駐車場  なし  取引態様 媒介 
備考 
  • 本下水に切替予定あり(但し、別途工事費用と負担金が発生します。買主負担)。
  • 現況有姿売買 契約不適合責任免責になります。