本文へスキップ

市川・浦安の不動産情報 住宅・マンション・土地のご相談は有限会社わかば土地へ

電話でのお問い合わせは047-324-6032

〒272-0826 千葉県市川市真間1-15-12

物件詳細 一戸建detail

市川市真間5丁目(中古住宅)

閑静な住宅街にある東南角地 陽当り良好な2SLDK 小中学校徒歩10分圏内 車庫付きの敷地面積が100uを超える一戸建が2,000万円台!

物件写真

外観 内装1 外観

物件概要

価格 価格 28,800,000円 種別 中古住宅
所在地 市川市真間5丁目
最寄駅 総武線市川駅徒歩23分 
敷地面積 100.26u その他私道面積 16u
都市計画 市街化区域  用途地域  1種低層住居専用地域 
その他法令上の制限 法22条区域内 風致地区 宅地造成等規制区域(市内全域)景観法
道路 南約4m×東約4m 公道 地目 宅地 
土地権利 所有権 地勢 平坦地
建物構造・規模 木/RC造地下1階付地上2階建  築年月  1997年8月 
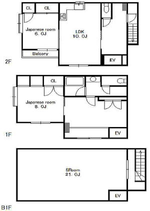
延床面積 107.04u  間取り 2SLDK 
設備 公営水道・東電・都市ガス・個別浄化 建物種類 居宅
現況 引渡し 相談
駐車場  なし  取引態様 媒介 
備考 
  • 容積率超過 再建築の際同規模の建築は出来ません。
  • 現況有姿売買 契約不適合責任免責。