本文へスキップ

市川・浦安の不動産情報 住宅・マンション・土地のご相談は有限会社わかば土地へ

電話でのお問い合わせは047-324-6032

〒272-0826 千葉県市川市真間1-15-12

物件詳細 一戸建detail

船橋市丸山3丁目(中古住宅)

“ちょうどいい”って、こういうこと。土地133u、建物111uの4LDK。施工は木下工務店。緩やかなひな壇の整形地、東傾斜で朝の光が心地よい。駅からは少し歩くけれど、価格は1,780万円。背伸びしない、でも妥協しない。そんな一軒。

物件写真

外観 内装1 外観 内装1 外観

物件概要

価格 価格 17,800,000円 種別 中古住宅
所在地 船橋市丸山3丁目
最寄駅 東武野田線馬込沢駅徒歩14分 
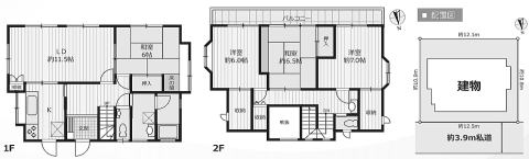
敷地面積 133.90u その他私道面積 25.45u
都市計画 市街化区域  用途地域  1種低層住居専用地域 
その他法令上の制限 法22条区域内 宅地造成等規制区域(市内全域)景観法
道路 北約3.9m私道(位置指定あり) 地目 宅地 
土地権利 所有権 地勢 緩やかなひな壇
建物構造・規模 木造2階建  築年月  H4年9月 
延床面積 111.99u  間取り 4LDK 
設備 公営水道・東電・都市ガス・本下水 建物種類 居宅
現況 引渡し 相談
駐車場  なし  取引態様 媒介 
備考 
  • 再建築時にはセットバックを要します(約0.63u)。
  • 現況有姿売買・契約不適合責任免責。