本文へスキップ

市川・浦安の不動産情報 住宅・マンション・土地のご相談は有限会社わかば土地へ

電話でのお問い合わせは047-324-6032

〒272-0826 千葉県市川市真間1-15-12

物件詳細 一戸建detail

市川市原木2丁目(中古住宅)

原木中山駅徒歩10分!湾岸線至近の収益化可能な中古戸建。物流拠点に近い。洒落た外観の3LDK。南向きの大きな庭と陽当たりの良さが魅力。周辺は倉庫・工場が多く、住環境よりも利便性重視の方向け。※調整区域につき、建築・用途制限あり。詳しくはお問い合わせ下さい。建物綺麗です。

物件写真

外観 内装1 外観 内装1 外観

物件概要

価格 価格 34,800,000円 種別 中古住宅
所在地 市川市原木2丁目
最寄駅 東西線原木中山駅徒歩10分 
敷地面積 142.61u その他私道面積 8.47u
都市計画 市街化調整区域  用途地域  無指定
その他法令上の制限 法22条区域内 宅地造成等規制区域(市内全域)景観法 航空法
道路 北4m私道 地目 宅地 
土地権利 所有権 地勢 平坦地
建物構造・規模 木造2階建  築年月  H15年10月 
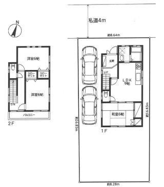
延床面積 69.13u  間取り 3LDK 
設備 公営水道・東電・都市ガス・個別浄化 建物種類 居宅
現況 居住中 引渡し 相談
駐車場  あり 取引態様 媒介 
備考 
  • 原木幼稚園801m、信篤小学校592m、高谷中855m、わたぐも保育園185m。