本文へスキップ

市川・浦安の不動産情報 住宅・マンション・土地のご相談は有限会社わかば土地へ

電話でのお問い合わせは047-324-6032

〒272-0826 千葉県市川市真間1-15-12

物件詳細 事業用物件detail

足立区千住東1丁目 (売店舗付住宅)

北千住の住宅街に、ひっそり佇む三階建ての寿司処。カウンター越しに、職人の技と心を届ける空間。備品譲渡可能。すぐに“握れる”店舗付き住宅2LDK。

物件写真

外観 内装1 内装1 外観

物件概要

価格 価格 88,000,000円 種別 売店舗付住宅
所在地 足立区千住東1丁目
最寄駅 常磐線・千代田線・伊勢崎線北千住駅徒歩7分 京成本線千住大橋駅徒歩11分 
敷地面積 60.00u その他私道面積 なし
都市計画 市街化区域  用途地域  準工業地域 
その他法令上の制限 準防火 3種高度
道路 4m×4m公道 角地 地目 宅地 
土地権利 所有権 地勢 平坦地
建物構造・規模 木造3階建  築年月  2011年1月 
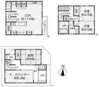
延床面積 108.47u  間取り 店舗+2LDK 
設備 公営水道・東電・都市ガス・本下水 建物種類 店舗・居宅
現況 盛業中 引渡し 相談
駐車場  なし  取引態様 媒介 
備考
  • 飲食店舗用備品譲渡可能。
  • フラット35等の住宅用ローンの利用が可能です。