本文へスキップ
市川・浦安の不動産情報 住宅・マンション・土地のご相談は有限会社わかば土地へ
有限会社わかば土地
電話でのお問い合わせは
047-324-6032
〒272-0826 千葉県市川市真間1-15-12
物件詳細 事業用物件
detail
千葉市中央区中央4丁目 (売店舗付住宅)
「雨漏りあり、でも価格は魅力。DIYで蘇る昭和の店舗住宅。」
千葉市中央区中央4丁目。千葉中央駅徒歩10分。昭和54年築、鉄骨造3階建て。土地71.44u、建物137.30u。店舗+住宅、現況空。屋根板金補修予定。中は古いまま、雨漏りあり。現況有姿売買。価格:3,180万円。リフォームが前提。だからこそ、自分の色に染められる。商業地域・16m公道面。
物件写真
物件概要
価格
価格 31,800,000円
種別
売店舗付住宅
所在地
千葉市中央区中央4丁目
最寄駅
京成千葉線千葉中央駅徒歩10分
敷地面積
71.44u
その他私道面積
なし
都市計画
市街化区域
用途地域
商業地域
道路
西16m公道
地目
宅地
土地権利
所有権
地勢
平坦地
建物構造・規模
S造3階建
築年月
S54年12月
延床面積
137.30u
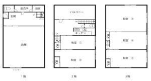
間取り
店舗+5K
設備
公営水道・東電・都市ガス・本下水
建物種類
居宅 店舗
現況
空
引渡し
相談
駐車場
なし
取引態様
媒介
備考
屋根板金補修・残置物撤去は売主が行います。
現況有姿・公簿売買 境界非明示 付帯設備免責 司法書士は売主指定。
雨漏りあり。1階の雨漏りは2階バルコニーの清掃で解消される可能性あり(売主談)。
このページの先頭へ
ナビゲーション
ホーム
ホーム
土地
売買・借地
一戸建
新築・中古
事業用物件
売工場・倉庫・ビル
収益物件
売アパート・投資物件
マンション
区分マンション
賃貸物件
貸店舗・貸地
会社概要
会社概要
個人情報
プライバシーポリシー
お問い合わせ
お問い合わせ