本文へスキップ

市川・浦安の不動産情報 住宅・マンション・土地のご相談は有限会社わかば土地へ

電話でのお問い合わせは047-324-6032

〒272-0826 千葉県市川市真間1-15-12

物件詳細 事業用物件detail

江戸川区南小岩7丁目 (売ビル)

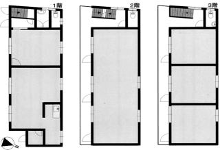
小岩駅徒歩8分、小岩中央通り沿いの角地に建つS造3階建て。各フロア毎の利用が可能。以前は学習塾として利用されており、視認性の高い角地のため、士業・教室・スクール・訪問介護・小規模法人の自社拠点など、幅広い事業用途に対応します。土地100.38u、販売価格121,000,000円。中央通り沿いの角地で、この規模・用途の物件は希少です。事業拠点としての使い勝手と、各フロア毎の賃貸収益性を兼ね備えた一棟です。

物件写真

外観 内装1

物件概要

価格 価格 121,000,000円 種別 売ビル
所在地 江戸川区南小岩7丁目
最寄駅 総武線小岩駅徒歩8分 
敷地面積 100.38u その他私道面積 なし
都市計画 市街化区域  用途地域  近隣商業地域 
その他法令上の制限 準防火 3種高度 JR小岩駅周辺地区地区計画 景観法
道路 東9.69m×南5.45m公道 角地 地目 宅地 
土地権利 所有権 地勢 平坦地
建物構造・規模 S造3階建  築年月  S59年12月 
延床面積 201.60u  間取り 事務所
設備 公営水道・東電・都市ガス・本下水 建物種類 事務所
現況 引渡し 相談
駐車場  なし  取引態様 媒介 
備考
  • 司法書士は売主指定です。