本文へスキップ

市川・浦安の不動産情報 住宅・マンション・土地のご相談は有限会社わかば土地へ

電話でのお問い合わせは047-324-6032

〒272-0826 千葉県市川市真間1-15-12

物件詳細 収益物件detail

墨田区石原4丁目(売ビル)

「錦糸町駅徒歩12分。修繕済み×満室×角地の安定収益ビル。」下町需要に支えられた12戸満室。2015年EV交換+2019年5月外壁塗装・屋上防水工事の安心資産。1階は長期営業の店舗、上階は実需型間取り。空室リスクの低い収益物件。築古でも“手当て済み”。6.7%で安定運用できるバランス型ビル。

物件写真

外観 内装1

物件概要

価格 価格 188,000,000円 種別 売ビル
所在地 墨田区石原4丁目
最寄駅 総武線錦糸町駅徒歩12分 
敷地面積 120.89u その他私道面積 なし
都市計画 市街化区域  用途地域  準工業地域 
その他法令上の制限 防火 22m高度地区 景観法
道路 東約10.9m×北約3.37m公道 角地 地目 宅地 
土地権利 所有権 地勢 平坦地
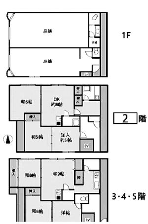
建物構造・規模 S造6階建  築年月  1979年12月 
延床面積 395.3u  間取り 店舗×2+1DK×6+2DK×4戸 
設備 公営水道・東電・都市ガス・本下水 建物種類 店舗・共同住宅
現況 賃貸中 引渡し 相談
駐車場  あり 取引態様 媒介 
備考
  • R7年12月現在満室賃貸中 月額収入:1,060,450円 6.7%。