本文へスキップ
市川・浦安の不動産情報 住宅・マンション・土地のご相談は有限会社わかば土地へ
有限会社わかば土地
電話でのお問い合わせは
047-324-6032
〒272-0826 千葉県市川市真間1-15-12
物件詳細 賃倉庫
detail
市川市本行徳
大型トレーラー対応・10m公道面。718坪・3階建倉庫(リフト)市川湾岸エリアで“車が入る希少物件。
・大型車輛の出入りスムーズ
・商用車10台前後駐車可(車庫使用料なし)
・24時間稼働可能な工業専用地域
・R357・外環至近で広域配送に最適
「使える倉庫」を探す企業向け。過度な設備はないが、仕事は確実に回る。
物件写真
物件概要
種別
貸倉庫
所在地
市川市本行徳
交通
京葉線市川塩浜駅徒歩23分
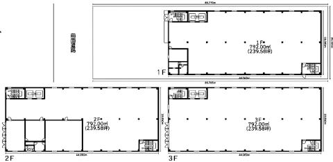
使用部分面積
2,376u
賃料/月
2,640,000円(税込)
敷金
10ヶ月
礼金
2ヶ月
償却
解約時:1ヶ月
構造規模
鉄骨造3階建
築年月
1983年11月
共益費
なし
契約期間
3年
更新
可能(新賃料1ヶ月分+税)+更新事務手数料0.5ヶ月
用途地域
工業専用
地域
現況
空
取引態様
媒介
備考
保証会社加入義務があります。
このページの先頭へ
ナビゲーション
ホーム
ホーム
土地
売買・借地
一戸建
新築・中古
事業用物件
売工場・倉庫・ビル
収益物件
売アパート・投資物件
マンション
区分マンション
賃貸物件
貸店舗・貸地
会社概要
会社概要
個人情報
プライバシーポリシー
お問い合わせ
お問い合わせ