本文へスキップ
市川・浦安の不動産情報 住宅・マンション・土地のご相談は有限会社わかば土地へ
有限会社わかば土地
電話でのお問い合わせは
047-324-6032
〒272-0826 千葉県市川市真間1-15-12
物件詳細 売地
detail
市川市須和田1丁目(住宅用地)
須和田の閑静な住宅地。土地20坪、北6m道路。現況建物付きでお渡しします。建物は現況のまま。土地としてご検討ください。1980万円で資産価値を確保。再建築時には制限あります。現況建物を活かすも良し、土地利用も良し。
物件写真
物件概要
価格
19,800,000円
最適用途
住宅用地
所在地
市川市須和田1丁目
最寄駅
総武線市川駅バス9分「須和田」停徒歩2分
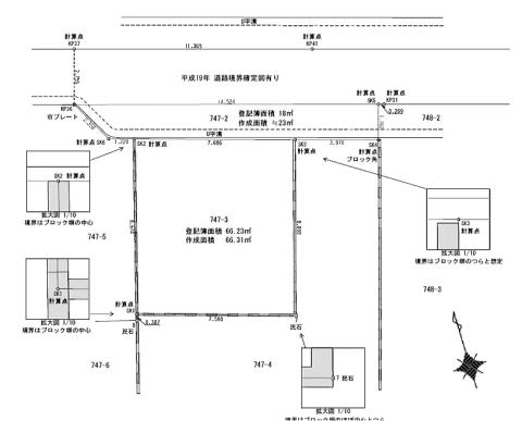
敷地面積
66.23u
その他私道面積
18u
都市計画
市街化区域
用途地域
1種低層住居専用地域
土地権利
所有権
地目
宅地
その他法令上の制限
宅地造成等規制区域(市内全域)景観法
建蔽率
50%
指定容積率
100%
接道状況
北約6m
地勢
平坦地
設備
公営水道・東電・都市ガス・本下水
建築条件
なし
現況
古屋あり
取引態様
媒介
備考
現況建物:木造/RC造3階建 103.75u H3年5月築 3LDK。建蔽率・容積率超過。
このページの先頭へ
ナビゲーション
ホーム
ホーム
土地
売買・借地
一戸建
新築・中古
事業用物件
売工場・倉庫・ビル
収益物件
売アパート・投資物件
マンション
区分マンション
賃貸物件
貸店舗・貸地
会社概要
会社概要
個人情報
プライバシーポリシー
お問い合わせ
お問い合わせ