本文へスキップ

市川・浦安の不動産情報 住宅・マンション・土地のご相談は有限会社わかば土地へ

電話でのお問い合わせは047-324-6032

〒272-0826 千葉県市川市真間1-15-12

物件詳細 売地detail

江戸川区松江2丁目(店舗用地・事業用地)

《江戸川区松江|東南角地・容積率300%・事業用地》同潤会通り沿い、東南角地の視認性抜群な商業・準工業地域。容積率300%、建ぺい率80%のボリュームを活かし、医療モール・物流拠点・共同住宅など多用途に対応可能。バス停徒歩1分の利便性と、174坪の整形地が、次の事業展開を支えます。

物件写真

外観 内装1 外観

物件概要

価格 313,930,000円 最適用途 店舗用地・事業用地
所在地 江戸川区松江2丁目
最寄駅 都営新宿線一之江駅徒歩28分 またはバス9分「中央通り」停徒歩1分
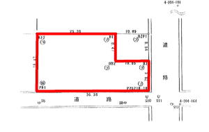
敷地面積 576.59u  その他私道面積 なし
都市計画 市街化区域 用途地域 近商・準工地域
土地権利  所有権  地目  宅地
その他法令上の制限 準防火 3/2種高度 最低敷地面積:70u 航空法 景観法  
建蔽率 60/80% 指定容積率 200/300%
接道状況 東約10.8m公道×南約5.4m公道 地勢 平坦地
設備 公営水道・東電・都市ガス・本下水 建築条件 なし
現況 更地 取引態様 媒介 
備考 
  • 公簿売買 確定測量済み 契約不適合責任免責。